

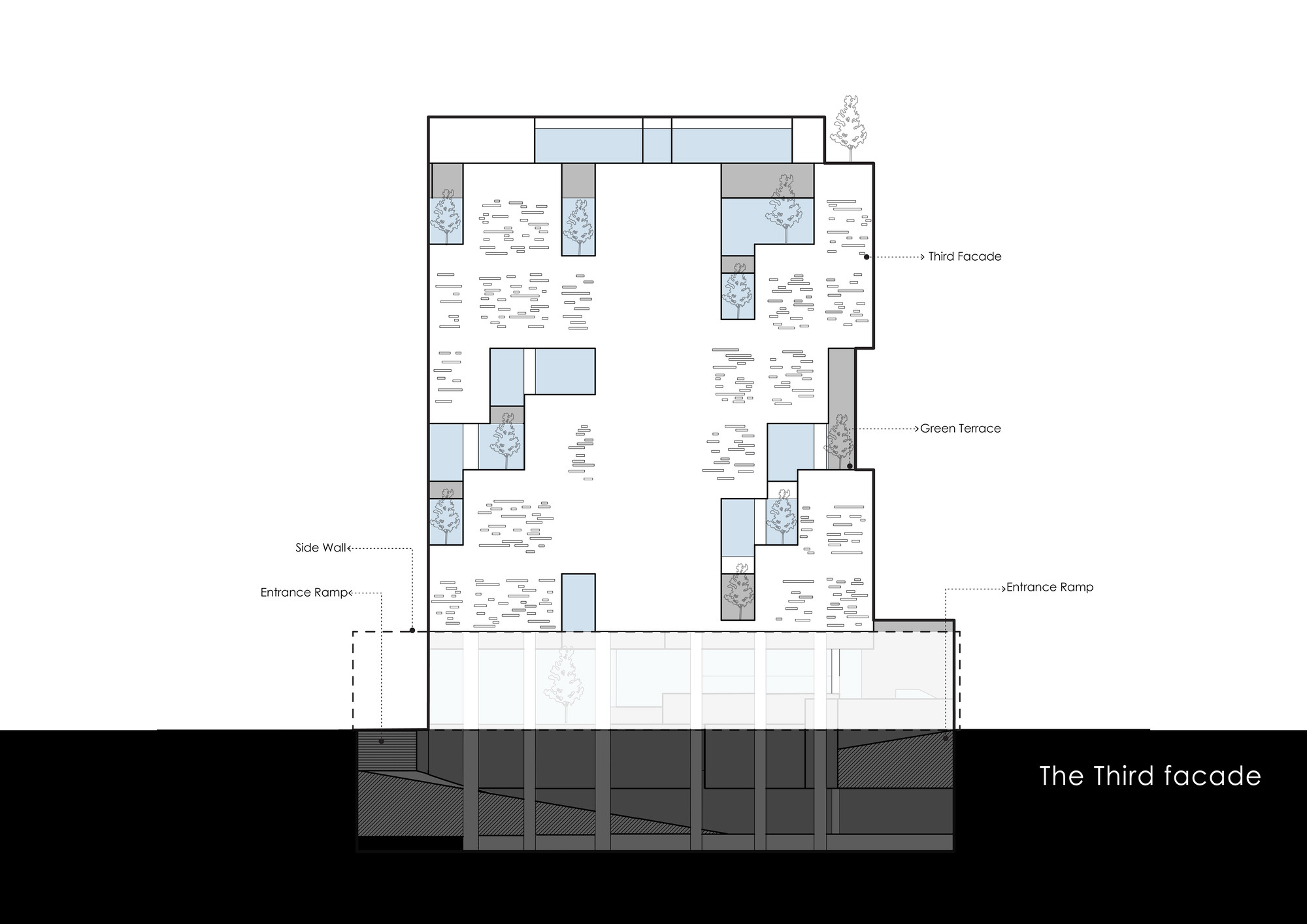
Located alongside Sajad Blvd. in Mashhad, this project is an office-commercial complex. The site of the project was located next to a City Gas Power Station. This unique situation enabled us to rethink the common infill typology for office buildings. Infill office buildings usually have to deal with issues such as lack of proper natural light and ventilation. Limited working spaces as well as lack of greenspace and natural ventilation are some of the major issues infill office buildings have to deal with. Another issue regarding this type of buildings is the disconnection between the commercial zone on the lower levels of the building and the city. Architecture of the infill office buildings should be flexible enough to host a variety of activities and functions while enhancing the living atmosphere for the users. The common strategy used for infill projects in Iran is to create a 12m2 light well on sides of the building to provide light and ventilation to the central parts of the building. The fact that this project is located next to a one story tall power station, provided the opportunity to create a third façade. Here the third façade not only creates a better urban scenery, but also enhances light penetration and ventilation inside the building. In this case the common low quality light well turns into an open void which follows the spatial organization of the project. The aim here was to enhance natural ventilation and lighting, while creating greenspaces and semi-open spaces for each office unit. In order to further enhance light penetration, pieces of glass were placed in-between the brick layers on this side of the building. The quality of greenspaces on the third façade has been extended to the main façade. This green space controls the amount of south sunlight exposure. The side voids have also been extended to the lower levels, to provide natural light and ventilation. The café on the ground floor with an outdoor patio not only invites pedestrians, but also serves the staff and clients of the building as a place to relax and have a cup of coffee. Another important issue regarding office buildings is to provide proper common facilities for the staff and to enhance the atmosphere of the working space. In this project the roof garden is the place for the staff to gather, dine, and relax and to gain energy for more productive working hours. The aim here is to modify the typology of office buildings around the town towards working spaces which are more enjoyable and pleasant to work in.













